- Woonoppervlakte
- Circa 140 m²
- Perceeloppervlakte
- Circa 290 m²
- Bouwjaar
- Gebouwd in 1981
- Aantal kamers
- 5 kamers (4 slaapkamers)
Op zoek naar een heerlijk ruim huis met een fraaie uitstraling? Kom dan eens kijken naar deze royale twee-onder-een-kapwoning gelegen aan een mooie straat in een rustige en kindvriendelijke woonomgeving. Deze goed onderhouden woning beschikt o.a. over vier slaapkamers, ruime voortuin met oprit en carport, fijne achtertuin met terrasoverkapping, extra tuinberging en goede achterom. De woning is gunstig gelegen op korte afstand van het gezellige Wijchense centrum.
INDELING
BEGANE GROND
overdekte entree, hal, modern zwevend toilet met fonteintje, meterkast met uitgebreide groepenkast, ruime lichte woonkamer met een fraaie houten vloer, zitgedeelte met houthaard, eetgedeelte waar met gemak een eettafel met zes stoelen kan staan, schuifpui naar de achtertuin en doorgang naar de keuken in de achterbouw, de keuken is voorzien van een ruime opstelling met diverse inbouwapparatuur, ook hier weer goede lichtinval, genieten van je ontbijt aan de gezellige keukentafel, tevens is de keuken voorzien van een praktische proviand/bergruimte, via de keuken is de berging/bijkeuken bereikbaar.
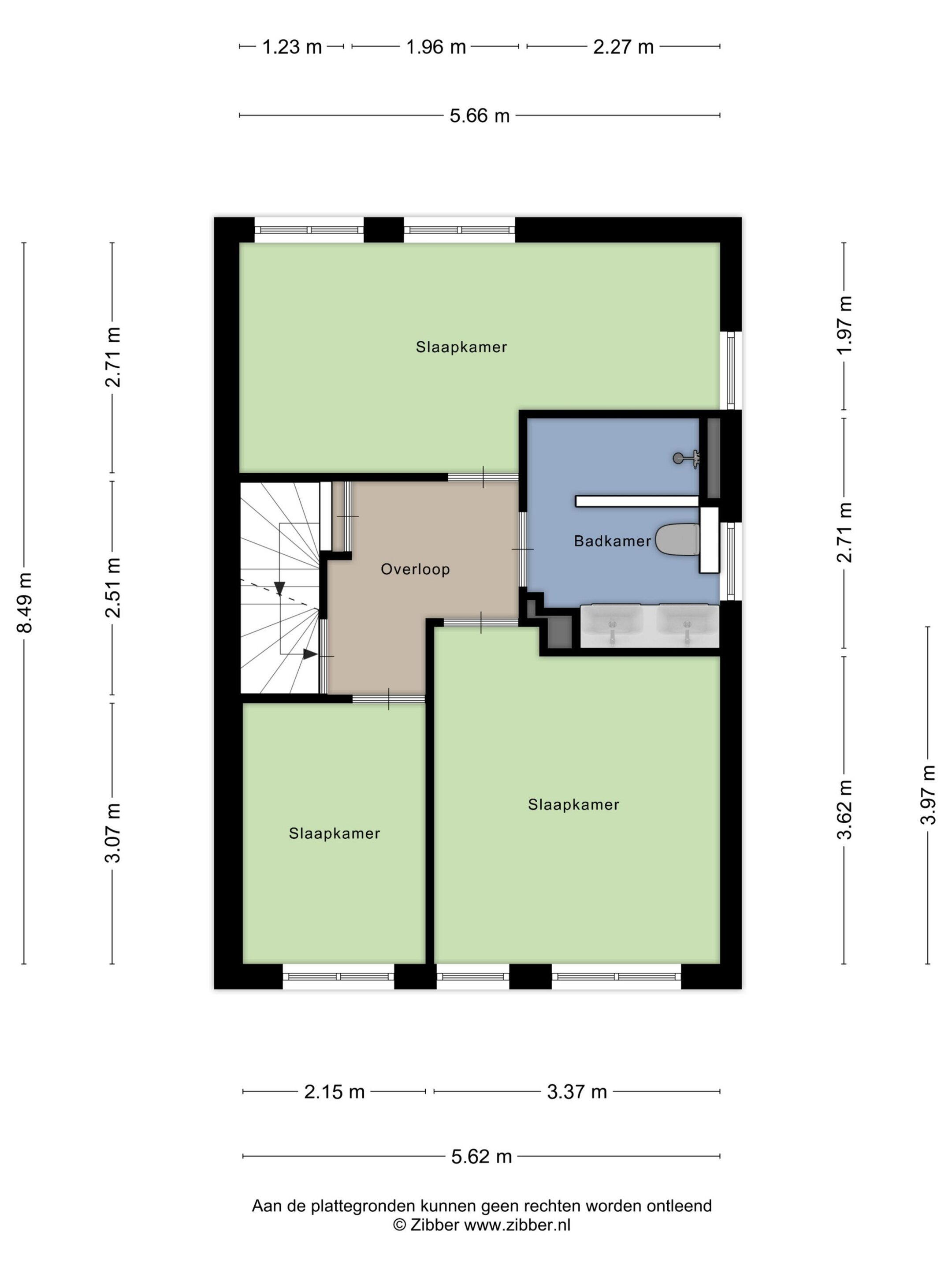
EERSTE VERDIEPING
ruime overloop, in totaal drie fijne mooie slaapkamers, ook op de verdieping ervaar je weer hoe licht de woning is, de centraal gelegen moderne badkamer heeft een luxe uitstraling en is voorzien van een dubbele wastafel met meubel, zwevend toilet en inloopdouche met regen/handdouche.
TWEEDE VERDIEPING
middels een vaste trap is de tweede verdieping bereikbaar, overloop, slaapkamer met dakkapel en berg/cv-ruimte.
BUITEN
ruime voortuin met oprit, carport met lichtkoepel, de achtertuin is bereikbaar via de schuifpui in de woonkamer en via de loopdeur in de keuken, de tuin is voorzien van een terrasoverkapping, zonnescherm, tuinberging en een achterom.
ALGEMEEN/BIJZONDERHEDEN
+ Bouwjaar 1981
+ Woonoppervlakte 140 m2 exclusief berging/bijkeuken
+ Perceel 290 m2 (alsmede een stukje voortuin in bruikleen van de gemeente)
+ Grotendeels kunststof kozijnen met HR++ beglazing
+ De woning is voorzien van rolluiken
+ Fraaie lichtval in de woning
+ Vier slaapkamers
+ Royale fraaie uitstraling
+ Gunstige ligging
LIGGING/OMGEVING
De woning is gelegen aan een fraaie ruime straat, in een kindvriendelijke verkeersluwe wijk. In de buurt zijn diverse voorzieningen aanwezig waaronder supermarkten, veel groen en een park/speeltuin. Het gezellige centrum van Wijchen, met een goed en ruim winkel- en horeca aanbod, ligt op korte afstand. Sportverenigingen zijn ook dichtbij te vinden. Goed openbaar vervoer (bus/NS station). Ook ten opzichte van de uitvalswegen/rijkswegennet is de wijk gunstig gelegen. De stad Nijmegen en veel recreatie- en natuurgebied bevinden zich in de directe omgeving.
Interesse in deze mooie woning? Bel of mail ons voor een afspraak.
Overdracht
- Vraagprijs
- € 535.000 k.k.
- Status
- Verkocht
Bouw
- Object type
- Eengezinswoning, 2-onder-1-kapwoning
- Soort bouw
- Bestaande bouw
- Bouwjaar
- 1981
Oppervlakte en inhoud
- Woonoppervlakte
- 140 m²
- Perceeloppervlakte
- 290 m²
- Inhoud
- 536 m³
- Externe bergruimte
- 9 m²
- Gebouwgeb. buitenruimte
- 24 m²
Indeling
- Aantal kamers
- 5 kamers (4 slaapkamers)
- Aantal woonlagen
- 2 woonlagen en een zolder
Energie
- Energielabel
- C
- Energielabel registratie
- 26-12-2020
- Verwarming
- Cv-ketel
- Warm water
- Cv-ketel
- Cv ketel
- Hr combiketel ( combiketel uit 2022, eigendom)
Buitenruimte
- Tuin
- Achtertuin, voortuin en zijtuin
- Afmetingen achtertuin
- 105 m² (9,50 meter diep en 11,00 meter breed)
- ligging tuin
- Gelegen op het noordoosten bereikbaar via achterom
Bergruimte
- Schuur / berging
- Aangebouwde stenen berging
Parkeergelegenheid
- Soort parkeergelegenheid
- Op eigen terrein en openbaar parkeren
Energieverbruik in Wijchen
Energielabel deze woning
Energielabel C
Publicatie energielabel: 26-12-2020
Stroomverbruik per jaar
(Gemiddelde twee onder een kap in Wijchen)
Gasverbruik per jaar
(Gemiddelde twee onder een kap in Wijchen)
* Cijfers zijn afkomstig van het CBS en bedoeld als indicatie en kunnen verschillen voor deze woning
Indicatie hypotheeklasten
Eigen inleg:
Spaargeld / overwaarde
Rente:
Laagste 10-jaars rente
Laagste 10-jaars rente
2,85% - Centraal Beheer Groen... - NHG
3,22% - Centraal Beheer Groen... - 80%
Laagste 20-jaars rente
3,19% - Centraal Beheer Groen... - NHG
3,31% - Centraal Beheer Groen... - 80%
Laagste 30-jaars rente
3,34% - Centraal Beheer Groen... - NHG
3,47% - Centraal Beheer Groen... - 80%
Hypotheek:
Bruto maandlasten: € 0 p/m
Netto maandlasten: € 0 p/m
Hoe berekenen we dit?
Het rentepercentage is gebaseerd op de laagste 10-jaars vaste rente voor één hypotheekdeel. De vermelde rente (3.22% zonder NHG) is gecontroleerd op 07-04-2025. Deze berekening is gebaseerd op een annuïteitenhypotheek die volledig wordt afgelost, waarbij de maandlasten gedurende de gehele looptijd gelijk blijven. De werkelijke rente en netto maandlasten kunnen variëren, afhankelijk van uw persoonlijke situatie en de hypotheekverstrekker. Raadpleeg een financieel adviseur voor een nauwkeurige berekening en advies. Aan deze berekening kunnen geen rechten worden ontleend; het dient enkel als indicatie.
Documentatie
Kadastrale kaart
Leefomgeving
Brochure
Plattegronden PDF
BAG uittreksel
Bezoek onze website
Bezichtiging
Bod uitbrengen
Waardebepaling
Zoekopdracht
Alles downloaden
Zonnegrenzen bekijken
Op de kaart
Inwoners in Wijchen
Cijfers voor postcodegebied 6601
- Totaal aantal inwoners
- 36260 inwoners
- Mannen
- 49%
- Vrouwen
- 51%
Inwoners in Wijchen
Cijfers voor postcodegebied 6601
- tot 15 jaar
- 12%
- 15 tot 25 jaar
- 13%
- 25 tot 35 jaar
- 19%
- 45 tot 65 jaar
- 34%
- 65 en ouder
- 21.7%
Huishoudens in Wijchen
Cijfers voor postcodegebied 6601
- Eenpersoons zonder kinderen
- 27%
- Meerpersoons zonder kinderen
- 32%
- Huishoudens zonder kinderen
- 59%
Huishoudens in Wijchen
Cijfers voor postcodegebied 6601
- Huishoudens met één kind
- 20%
- Huishoudens met meerdere kinderen
- 21%
- Huishoudens met kinderen
- 41%
Woningen in Wijchen
Cijfers voor postcodegebied 6601
- Woningen voor 1945
- 2%
- Woningen tussen 1945 en 1965
- 5%
- Woningen tussen 1965 en 1975
- 49%
- Woningen tussen 1975 en 1985
- 19%
- Woningen tussen 1985 en 1995
- 3%
Woningen in Wijchen
Cijfers voor postcodegebied 6601
- Woningen tussen 1995 en 2005
- 5%
- Woningen tussen 2005 en 2015
- 15%
- Woningen na 2015
- 2%
- Huurwoningen
- 40%
- Koopwoningen
- 60%
Overige in Wijchen
Cijfers voor postcodegebied 6601
- Gemiddelde WOZ waarde
- € 309.000,-
- Personen onder de 65 met uitkering
- 10%
Overige in Wijchen
Cijfers voor postcodegebied 6601
- Adressen per km²
- 1700
- Stedelijkheid (schaal 1 op 5)
- 80%
Korte feiten over Wijchen
Wijchen is de hoofdplaats van de gemeente Wijchen in de Nederlandse provincie Gelderland. De plaats is met 36.625 inwoners (op 1 januari 2021) de grootste in de gelijknamige gemeente van bijna 41.000 inwoners. Wijchen ligt aan de zuidgrens van Gelderland, tegen Noord-Brabant aan.
Empé Makelaars
Indien u vragen heeft of u wilt een bezichtiging inplannen, dan kunt u gebruik maken van het formulier hiernaast. Er zal daarna op korte termijn contact met u worden opgenomen.
Contact opnemen
Over Empé Makelaars
Empé Makelaars uw woning makelaar en taxateur. Persoonlijke betrokkenheid bij uw zakelijke belangen!
Nieuwste reviews
-
Touwslagersbaan 8
Het contact met de makelaar hebben wij als zeer prettig ervaren. Hij is kundig, fijn in omgang zoekt de zaken goed uit geeft goede adviezen....
-
Yvonne Doff
Ik kan Empé Makelaars erg aanbevelen. Prettige man in de omgang, fijne communicatie en reageert snel. Hij is deskundig! Bij elk volgend huis...
-
Veenhof 1610
Er was erg fijn contact. De makelaar was altijd bereikbaar voor vragen. Wij zijn erg tevreden over de verkoop.